Cedar Custom Homes

Modern Custom Post and Beam Homes Design

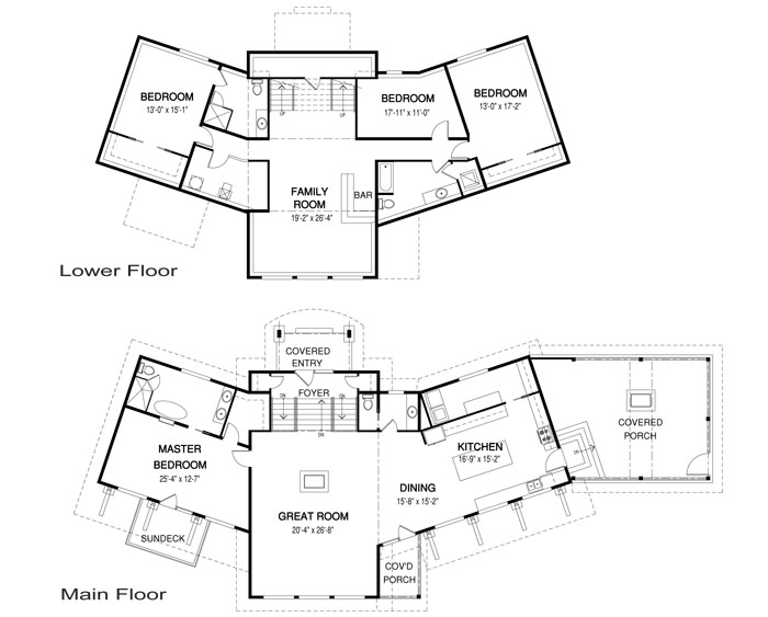
The Newboro Modern series custom design and home package is at home in any setting. The great room is a focal point with its wall of windows. This new cedar home plan was designed with the space in mind for a modern, raised fireplace.

Affordable Cedar Homes - Post and Beam Homes - Custom Homes

REQUEST A CALL

Newboro Custom Cedar Homes Plans

4 Bedrooms | 3.5 Bathrooms | 3,876 sq ft.

Let’s Work Together To Find A Custom Home Design That YOU Love

Robert can help save you time and money. Let's Talk!

We ♥ new friends

I'd like additional information on this home

Complete all the fields below and how we can be of help
or CALL 800-728-4474 TODAY!

© Copyright 2017 Cedar Homes by Cedar Designs - All rights reserved.

Cedar Homes California | Cedar Homes Texas